Managing a sports facility, athletic department, or contracting build-out means every component counts. From the turf to the lighting, your choices impact safety, performance, and your bottom line. The commercial sports netting you install is one of the most critical investments in this equation. For high-traffic complexes, scholastic gymnasiums, and professional training centers, not all netting is created equal. This post will cover what facility managers and athletic directors need to look for when sourcing durable, high-performance athletic netting solutions.
What Defines High-Quality Commercial Sports Netting?
When sourcing ball containment nets or barrier netting, “commercial grade” signifies resilience. Your netting must withstand constant, high-velocity impacts, significant abrasion, and for outdoor installations relentless UV and moisture exposure. This is essential for the effective functioning of commercial sports netting.
Standard, off-the-shelf netting can quickly degrade under this type of heavy use, leading to rips, safety hazards, and costly replacements. This is why material science is so important. For professional sports netting applications, premium materials like high-strength nylon offer the optimal blend of durability, abrasion resistance, and long-term performance.
Matching the Net to the Application: Batting Cages & Golf Cages
Different sports and applications demand specific netting solutions. Two of the most demanding environments are baseball and golf training facilities, which benefit from custom sports netting solutions.
- Batting Cage Nets: Both indoor and outdoor hitting tunnel nets face intense, close-range impacts from bats and balls. A heavy-duty, knotted nylon net provides the superior strength needed to handle daily use from scholastic teams. It is also suitable for commercial training establishments.
- Golf Cage Netting: Similarly, golf cage netting must be robust enough to absorb the full impact and spin of a driven ball. These ball impact nets are essential for protecting players, spectators, and the facility structure itself.
Using a custom-fabricated enclosure net ensures a perfect fit for your specific space, maximizing safety and training efficiency.
The Advantage of Custom-Fabricated Sports Facility Netting
One of the biggest challenges for municipal parks or university field houses is finding a solution that fits a unique space or set of dimensions. This is where custom sports facility netting becomes invaluable, especially in commercial sports environments.
Rather than forcing a standard-sized panel to work, custom fabrication allows you to specify the exact height, length, and shape you need. At Gourock, we specialize in this precise approach. We utilize premium, Made in the USA nylon netting for its superior strength and longevity. This allows us to supply large barrier netting panels for spectator protection and fully enclosed hitting nets. Everything is built to your facility’s exact requirements for indoor or outdoor use.
A Long-Term Investment in Safety and Performance
Choosing the right commercial sports netting is a long-term investment in your facility’s safety, functionality, and professional reputation. By focusing on premium materials like nylon and opting for a custom-fit solution, you ensure your athletic netting provides reliable performance season after season.
Here are three great commercial sports netting orders that we recently produced and shipped out. These demonstrate some of the Gourock.com capabilities for sports nets with unique design features and preferred dimensions.
Collegiate Baseball Facility Batting Cage Nets
Netting Type: Type 66 Nylon, Twisted-Knotted, Latex/Urethane Bonded
Mesh Size: 1-3/4″ Mesh, Black Diamond Pattern
Twine Thickness: #36 (2.5mm), 350 lb. minimum tensile strength rating
Bordering Selection: 5/16″ Braided Polyester Rope (all edges),
Dimensions: 20′ high X 12′ wide X 65′ long
Notes: 3 nets of this sizing for the location. (1x) overlapping netting entrance door. 100% Made in USA. Commercial sports netting for collegiate indoor baseball/softball training facility.

Outdoor Golf Hitting Cage Net
Netting Type: Type 66 Nylon, Twisted-Knotted, Latex/Urethane Bonded
Mesh Size: 3/4″ Mesh, Black Diamond Pattern
Twine Thickness: #21 (2.0mm), 210 lb. minimum tensile strength rating
Bordering Selection: 5/16″ Braided Polyester Rope (all edges),
Dimensions: 13′-4″ high X 12′ wide X 46′ long
Notes: (2x) overlapping netting entrance doors and side walls. (1x) custom ‘pull open’ end panel. 100% Made in USA. Commercial strength sports netting for outdoor golf training and multi-sport ball containment.

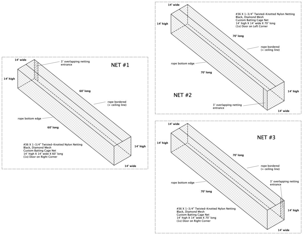
Commercial Batting Cage Nets for Baseball Association
Netting Type: Type 66 Nylon, Twisted-Knotted, Latex/Urethane Bonded
Mesh Size: 1-3/4″ Mesh, Black Diamond Pattern
Twine Thickness: #36 (2.5mm), 350 lb. minimum tensile strength rating
Bordering Selection: 5/16″ Braided Polyester Rope (all edges),
Dimensions: (2x) 14′ high X 14′ wide X 70′ long, (1x) 14′ high X 14′ wide X 60′ long
Notes: 3 nets needed for the location. (1x) overlapping netting entrance door on each net, located on side wall/corner. 100% Made in USA. Commercial baseball batting cage netting for a junior baseball association training facility.

Thank You to our Custom Sports Netting Customers!
An investment in commercial sports netting is a choice for safety, efficiency, and the quality of practice at your athletic training facility. We offer direct online ordering of netting products through our Online Custom Netting Calculators. We also specialize in premium customer service for more specialized netting productions. Feel free to contact Gourock directly with your sports netting needs. It is our pleasure to correspond about your project!
– Josh Grzyb @ Gourock.com Custom Netting